En AR-Design Interiorismo & Construcción desarrollamos proyectos ejecutivos completos que integran precisión técnica y visualización avanzada, permitiendo definir, coordinar y validar cada detalle antes de iniciar obra.
Nuestro proyecto ejecutivo convierte el diseño en información constructiva clara, bajo un solo criterio arquitectónico, asegurando una ejecución ordenada, sin improvisaciones ni sobrecostos, y garantizando que lo construido sea fiel al proyecto aprobado.
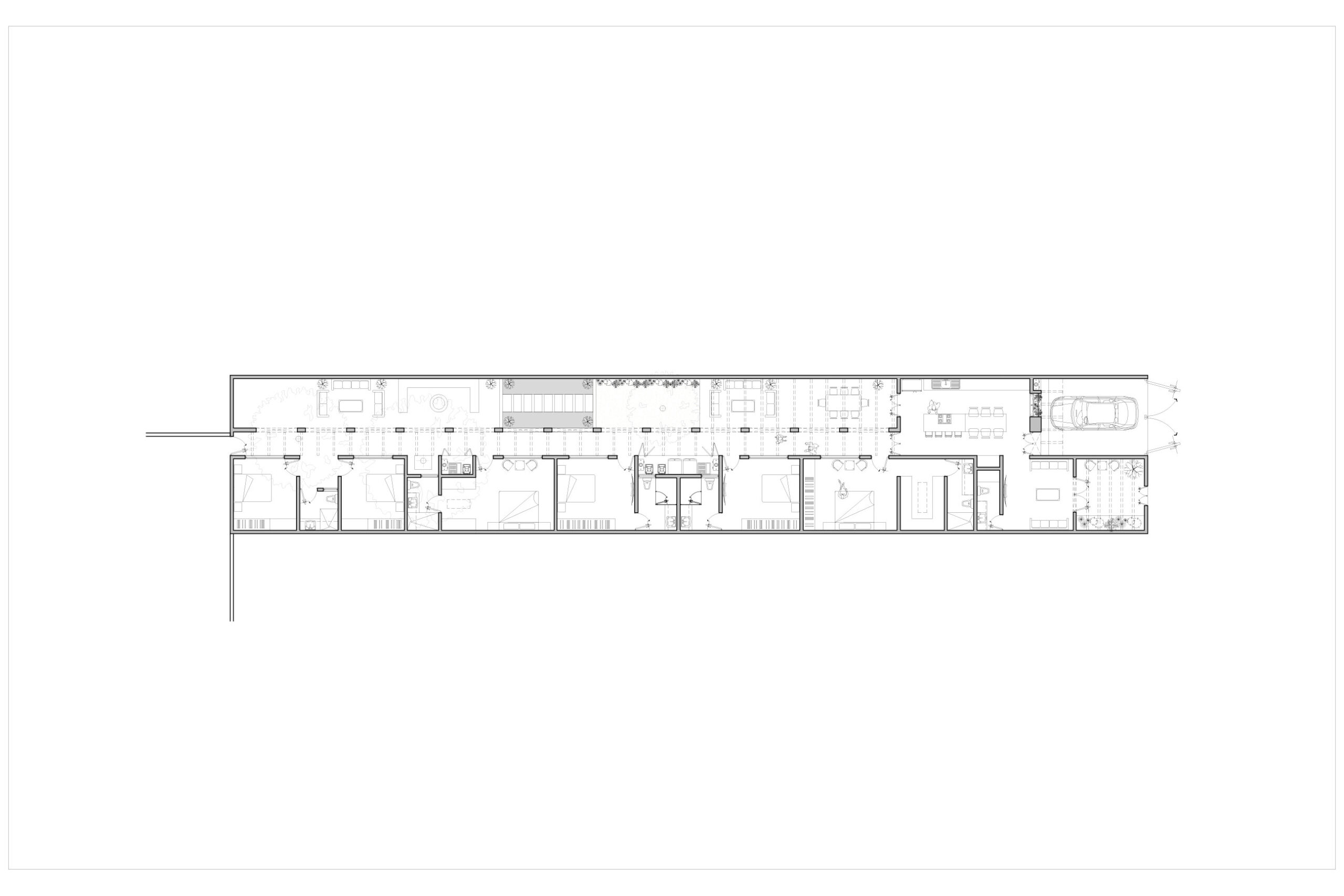
• Planos arquitectónicos ejecutivos
• Planos estructurales
• Planos eléctricos
• Planos hidráulicos y sanitarios
• Planos de gas
• Planos de acabados
• Detalles constructivos y secciones
• Planos de carpintería y herrería
• Especificaciones técnicas y criterios de construcción
• Cuadros de acabados
• Renders hiperrealistas
• Recorridos virtuales inmersivos (VR) para revisar diseño, materiales e iluminación
• Validación completa del proyecto antes de ejecutar
• Reducción de errores y cambios durante la obra
Para quienes buscan certeza técnica, control total del proyecto y un respaldo profesional sólido antes de iniciar la ejecución.
Cada propuesta se presenta mediante una cotización clara y desglosada, donde se especifican alcances, tiempos y entregables.
En AR-Design el alto nivel de detalle técnico es parte de nuestro estándar, garantizando orden, claridad y una correcta ejecución.







AR Design
Te responderemos en unos momentos.
¿Tienes algún proyecto a realizar?
Contáctanos Ahora Mismo
Contáctanos